This modern corner apartment is located in the popular, tranquil residencial area of Higueron West, in a gated complex, conveniently located close to the sea and amenities. Boasting all-day sun and beautiful views of the glittering Mediterranean and the coastline, this modern apartment would make a perfect holiday home.
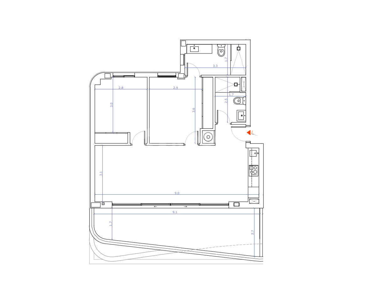
The open-plan living area seamlessly connects with the adjoining terrace making it the ideal space for entertaining and relaxation. The apartment features two spacious bedrooms, including a master suite with an en-suite bathroom, as well as an stylish guest bathroom.
For added comfort and convenience, the property includes two parking spaces and a storage room. You can also enjoy the outdoors with access to two fantastic pool areas, providing the perfect retreat just steps from your door.
The property is ideally located close to the beach, train station, and all the incredible amenities of the Higueron Resort; a range of sport activities, a state-of-the-art gym, a 5-star hotel, exquisite restaurants, and a shuttle transport service.
This apartment offers a great opportunity for anyone looking for a well-located and well-equipped home in a desirable area!
Discover the perfect blend of luxury and convenience with this brand-new corner apartment in the highly sought-after Higueron West.
469.000 €
All details
- BOHOMES1045 Reference
- Apartments Type
- 469.000 € Sale price
- 75 m² Built
- 63 m² Interior
- 20 m² Terrace
- 1 Levels
- 2 Beds
- 2 Baths
- 1 En-suite
- Communal Pool
- Communal Garage
- Communal Garden
- South West Orientation
- A EPC
Similar properties